COLUMNコラム
- 2025.12.22
- 空間デザイン
PLAN STORY 43『整えることで生まれた心地よさ―グレーを基調にした洗練リノベーション』
築年数の経過とともに気になっていた水まわりを交換しようと思ったことが、
今回のリノベーションのきっかけだったA様。
息子さんの独立を機に“これからの暮らしに合った住まい”を考え始められました。
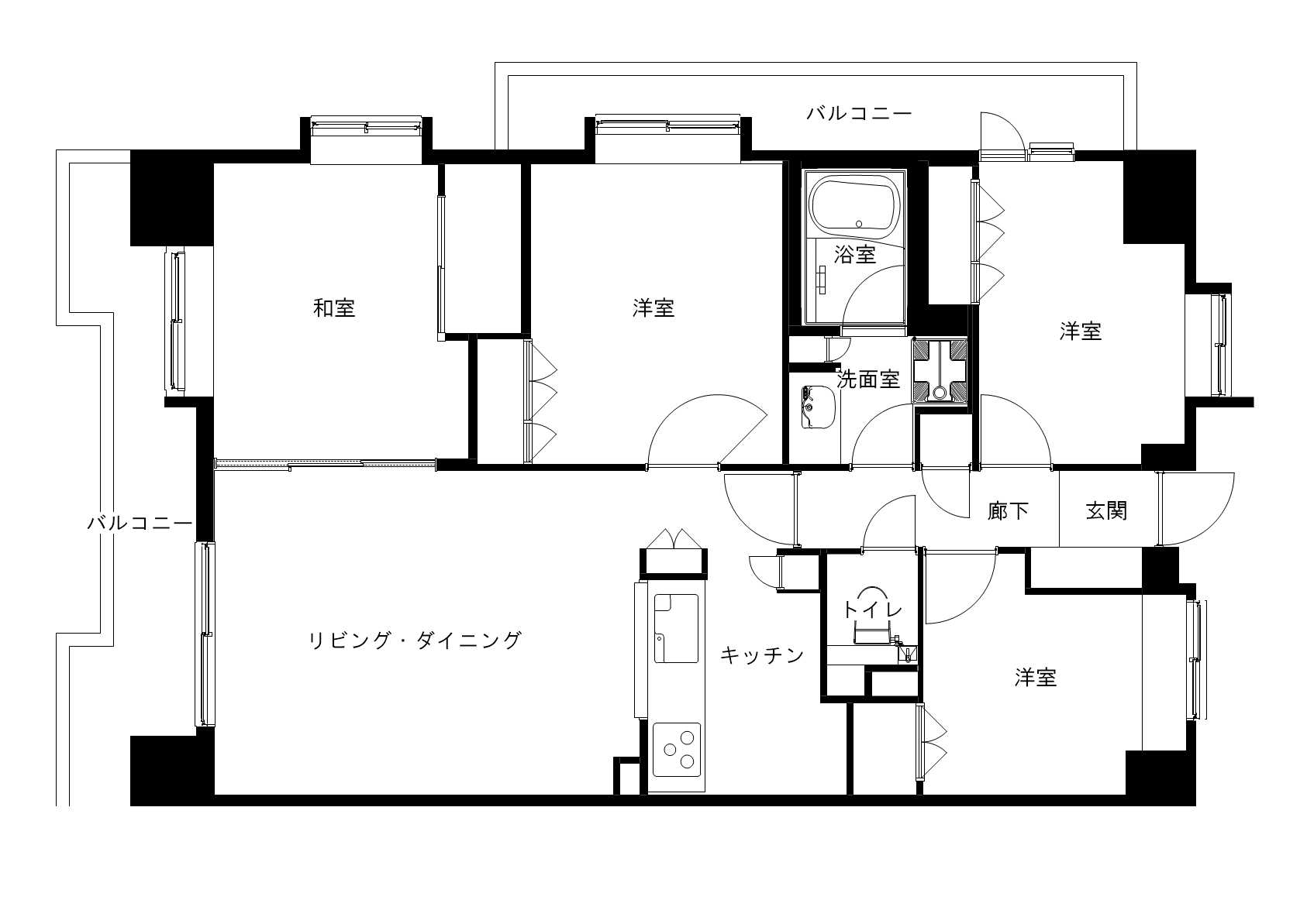
既存平面図
4LDKの既存間取り。
息子さんの独立を機にこれからの生活を見据えた間取りを検討していきました。
完成平面図
既存の部屋を有効的に活用しながら、今ある暮らし方に新しさを入れたプランとしました。
元あった和室の一部をリビング・ダイニングに拡張することで、より広がりある空間に様変わり。
ご要望を叶えた、心地よさと機能性を兼ね備えた空間に。
Before
After
なかでも一番のこだわりはキッチン。
「これまでの暮らしでは収納に合わせて生活していたけれど、
今回は自分の暮らしに合わせた収納をつくれたのが本当に嬉しい」とA様。
お気に入りのグレーを基調に空間全体の色味を統一し、すっきりと落ち着いた雰囲気に。
キッチンを広げてパイプスペースも有効活用できたことで、動線も快適になりました。
寝室も「狭さがちょうどよく、落ち着く空間」と友人にも好評で、
テレビやミニ冷蔵庫を置いて“こもれる部屋”として楽しむことが可能。
ウォークインクローゼットは、ご自身で服を畳みながら寸法を測って
決めたというこだわりの造作棚。
以前は「片付かない家」が悩みだったそうですが、今では“モノの帰る場所”が
できたことで片付けが自然にできるようになり、常に整っている空間になりました。
また、土間スペースを新たに設けたことで玄関まわりの使い勝手が格段に向上しました。
「とても便利で作ってよかった」と感じる、使い勝手とデザインを兼ね備えた住まいが完成。
洗面空間は色味が統一され、まるでホテルのような上質な雰囲気に。
デザイン性と清掃性を両立した洗面空間が実現。
リノベーションを終えた今、A様の家は、暮らしを整えながら心も軽くしてくれる、
“自分らしさ”が溶け込んだ心地よい空間となりました。
施工事例はこちらからご覧いただけます。
物件探しやリノベーションでお悩みの方はぜひお気軽にご相談ください。
ライフディレクション事業部 設計チーム / 一級建築士 / 既存住宅状況調査技術者
